• en venta
  • Ref. ES-C-5878.2-25

Casa Chalet Unifamiliar Adosada en Venta en Esparreguera

ESPARREGUERA

315.000 €

460 m² | 684,78 €/m²

Referencia
ES-C-5878.2-25
Precio
315.000 €
Tipo
Casa Chalet Unifamiliar Adosada
Modalidad
Venta
Habitaciones
6
Aseos
4
Tipo nave

Superficie

Construida
460 m²

Características

  • Parking
  • Calefacción
  • Terraza
  • Jardín
  • Balcón

Casa con posibilidad de hacer TRES PISOS CON ENTRADAS INDEPENDIENTES.
Vivienda entre medianeras en el centro de Esparreguera.
Muy soleada, con diversas posibilidades.
Parcela actual de 367m2 . En caso de comprar unicamente la casa, que es la descripción de este anuncio, se deberá segregar la parcela actual en DOS, y pasará de tener acceso a dos calles a tener acceso a una calle
Superficie total actual : 460m2 de vivienda y patio de 149m2 aprox.
Superficie RESULTANTE OBJETO DE ESTE ANUNCIO: 460m2 de vivienda , sin la zona de garaje, y patio a determinar (se deberá realizar estudio tecnico)
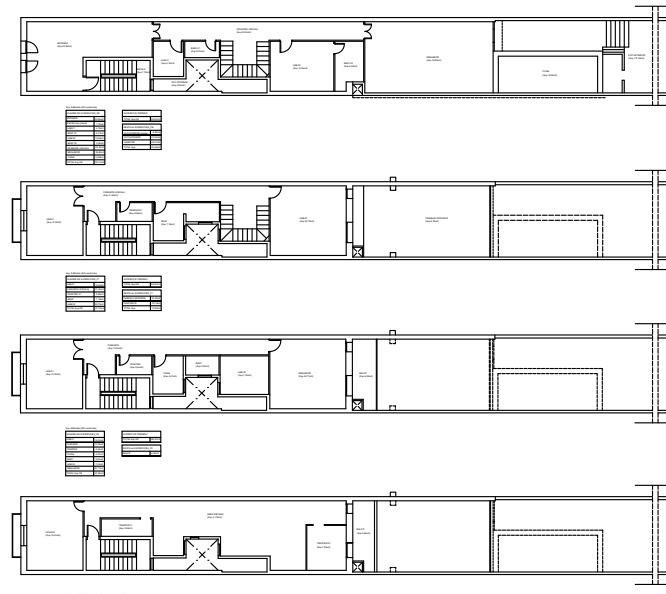
Vivienda distribuida en diferentes plantas:
- Pl. baja: 158m2
- Pl. primera: 126m2
- Pl. segunda: 88m2
- Pl. tercera: 88m2
Garaje: NO INCLUIDO .
Estado de conservación: Planta baja + planta primera en buen estado. Planta segunda a reformar. Planta tercera es una buardilla.
Calefacción en pl. primera y segunda
Distribución y superficies útiles:
- Vivienda compuesta de planta baja + planta primera:
Pl. baja: Entrada + 2 habitaciones (4m2 y 12m2) + comedor de 35m2 + cocina con salida a patio muy luminosa de 14m2 + 2 baños + escalera interior + patio interior en vivienda 8m2 + patio exterior 149m2 muy luminoso +
Pl. primera: 67m2 útiles: 2 habitaciones (15m2 + 20m2) + 1 baño de 7m2 + 2 trasteros + pasillo + escalera interior + terraza 38m2
- Pisos planta 2º y 3ª: Escalera independiente para acceso a pisos superiores des de la calle
- Pl. segunda: 67m2 útiles: Actualmente como piso independiente a reformar: Comedor + cocina + 2 habitaciones + 1 baño + tratero + pasillo + balcón 6m2
- Pl. tercera: 67m2 útiles: Buhardilla bajo cubierta, en estado de origen , distribuido en diferentes estancias + balcón 6m2
Este documento tiene una finalidad meramente informativa, y no reviste carácter contractual, si bien los datos que se facilitan se dan de buena fe y se consideran correctos, salvo error u omisión. Estos datos pueden sufrir variaciones debido a cambios ajenos a la empresa. (Impuestos no incluidos en los precios)

Ubicación aproximada

ESPARREGUERA

Casa Chalet Unifamiliar Adosada en Venta en Esparreguera
Casa Chalet Unifamiliar Adosada en Venta en Esparreguera
Casa Chalet Unifamiliar Adosada en Venta en Esparreguera
Casa Chalet Unifamiliar Adosada en Venta en Esparreguera
Casa Chalet Unifamiliar Adosada en Venta en Esparreguera
Casa Chalet Unifamiliar Adosada en Venta en Esparreguera
Casa Chalet Unifamiliar Adosada en Venta en Esparreguera
Casa Chalet Unifamiliar Adosada en Venta en Esparreguera
Casa Chalet Unifamiliar Adosada en Venta en Esparreguera
Casa Chalet Unifamiliar Adosada en Venta en Esparreguera
Casa Chalet Unifamiliar Adosada en Venta en Esparreguera
Casa Chalet Unifamiliar Adosada en Venta en Esparreguera
Casa Chalet Unifamiliar Adosada en Venta en Esparreguera
Casa Chalet Unifamiliar Adosada en Venta en Esparreguera
Casa Chalet Unifamiliar Adosada en Venta en Esparreguera
Casa Chalet Unifamiliar Adosada en Venta en Esparreguera
Casa Chalet Unifamiliar Adosada en Venta en Esparreguera
Casa Chalet Unifamiliar Adosada en Venta en Esparreguera
Casa Chalet Unifamiliar Adosada en Venta en Esparreguera
Casa Chalet Unifamiliar Adosada en Venta en Esparreguera
Casa Chalet Unifamiliar Adosada en Venta en Esparreguera
Casa Chalet Unifamiliar Adosada en Venta en Esparreguera
Casa Chalet Unifamiliar Adosada en Venta en Esparreguera
Casa Chalet Unifamiliar Adosada en Venta en Esparreguera
Casa Chalet Unifamiliar Adosada en Venta en Esparreguera
Casa Chalet Unifamiliar Adosada en Venta en Esparreguera
Casa Chalet Unifamiliar Adosada en Venta en Esparreguera

ENGINYERIA D’IMMOBLES URBANS I INDUSTRIALS ,S.L. ha sido beneficiario del Fondo Europeo de Desarrollo Regional cuyo objetivo es mejorar el uso y la calidad de las tecnologías de la información y de las comunicaciones y el acceso a las mismas y gracias a la Presencia web a través de página propia. Esta acción ha tenido lugar en el periodo de TIC Cámaras 2020. Para ello ha contado con el apoyo del programa TIC Cámaras de la Cámara de Barcelona

Comparte tu inmueble