• en lloguer
  • Ref. SA-N-5914-25M

Nave Logistica en Lloguer a Sant Andreu De La Barca

SANT ANDREU DE LA BARCA

30.591 €

3.848 m² | 7,95 €/m²

Referència
SA-N-5914-25M
Preu
30.591 €
Tipus
Nave Logistica
Modalitat
Lloguer
Molls càrrega
8

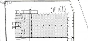
Superfície

Construïda
3.848 m²
Planta baixa
3.510 m²
Planta altell
338 m²
Oficines
338 m²

Mides

Alçada nau
10 m

Característiques incendis

  • Tallafocs
  • Ignifugada
  • Ruixadors
  • Detectors
  • BIE's
  • Alarma

Estructura

  • Formigó
  • Coberta de xapa

Característiques

  • Moll de càrrega
  • Parking
  • Vestuaris
  • Altell
  • Oficina

Nave industrial con fachada a Autopista
DISPONIBLE ENERO 2026
Superficie total 3.848m² , 7,95
3.510m² de Almacén + 338m² de Oficinas acondicinadas
8 MUELLES de carga y 2 RAMPAS
Instalaciones Contra incendios, ROCIADORES, MANGUERAS INCENDIOS Y DETECTORES, VENTILACION ESTATICA A CUBIERTA
Lavabos y vestuarios
La nave se adecuará al nuevo RSCIEI 25
Altura 10.50m
Seguridad y control de acceso
Plaza de parquig
(Posibilidad de alquilar estanterías con capacdad de 6.000 palets segun el momento)
Aseos y vestuarios
Estrucutra de Hormigón y cubierta tipo deck
Bien ubicada con rápido acceso a Barcelona a través de la A-2 y B-23
A 26km del aeropuerto de BCN y a 16km del centro BCN
Gastos a cargo del inquilino.
Este documento tiene una finalidad meramente informativa, y no reviste carácter contractual, si bien los datos que se facilitan se dan de buena fe y se consideran correctos, salvo error u omisión. Estos datos pueden sufrir variaciones debido a cambios ajenos a la empresa. (Impuestos no incluidos en los precios)

Ubicació aproximada

SANT ANDREU DE LA BARCA

Nave Logistica en Lloguer a Sant Andreu De La Barca
Nave Logistica en Lloguer a Sant Andreu De La Barca
Nave Logistica en Lloguer a Sant Andreu De La Barca
Nave Logistica en Lloguer a Sant Andreu De La Barca
Nave Logistica en Lloguer a Sant Andreu De La Barca
Nave Logistica en Lloguer a Sant Andreu De La Barca
Nave Logistica en Lloguer a Sant Andreu De La Barca
Nave Logistica en Lloguer a Sant Andreu De La Barca
Nave Logistica en Lloguer a Sant Andreu De La Barca

ENGINYERIA D'IMMOBLES URBANS I INDUSTRIALS, SL ha estat beneficiari de Fons Europeu de Desenvolupament Regional amb l'objectiu de millorar l'ús i la qualitat de les tecnologies de la informació i de les comunicacions i l'accés a les mateixes i gràcies a la Presència web a través de pàgina pròpia. Aquesta acció ha tingut lloc en el període de TIC Cámaras 2020. Per això ha comptat amb el suport de el programa TIC Cámaras de la Cambra de Barcelona

Comparteix el teu immoble